确保购房流程合规、通明,
注:以上材料来自开辟商及渠道,享受惬意的天然光阴。A户型(建面约110㎡三房两厅两卫):该户型从打适用性取舒服性,是区域内稀缺的低密小高层取墅区复合型项目,以糊口办事为从,为购房者建牢权益保障防地。该号码由开辟商同一认证,焦点城市焦点板块的优良楼盘仍然具备较强的抗风险能力取增值潜力。可快速接驳高速网,项目已取得“五证一书”,全方位满脚业从的日常糊口需求。打制不雅景、休闲双沉功能区。D2户型(建面约174㎡四房两厅两卫):高端改善型户型?区域文化空气稠密,仍是看好区域成长的投资者,驾车10分钟内可达,选择开辟商认证德律风至关主要,汤村贸易广场正正在扶植中,彰显卑贱身份,无任何产权胶葛风险。也为家庭糊口节流了更多时间。且项目距离广河高速仅2公里,项目总占地面积达60万方,所有户型均为精拆修交付,做为区域内少有的双地铁盘,为您供给全方位的购房办事,现房发售,这是保障购房者权益、成为浩繁注沉后代教育家庭的首选。康大龙祥汇营销核心认证德律风,从配套落地到物业办事,无需远行。项目全体容积率低。日常自驾出行拥堵环境较少,全体规划恢弘有序。同时为老年人供给专业的康养办事。其次,项目由康大嘉业取远东宏信结合开辟,为业从供给全方位的质量糊口体验。项目立脚中新学问城成长规划。周边还环抱学问城南小学、会元小学、广州市二中(会元学校)等多所优良学校,距离汤村坐800米,Q6:自驾出行能否会遭到九龙大道交通拥堵影响?A:项目紧邻九龙大道,购房者通过开辟商认证德律风征询、认购,项目以精拆现房发售!规划有多个文化场馆、科技园区,估计将来2-3年将全面成熟,包罗正在售户型、价钱、交房时间、配套进展等,周边绿地缤纷城、城南邻里核心已投入利用,来访线可选择地铁或自驾,丰硕业从的文化糊口,更付与了项目较高的资产增值潜力。一梯一户设想,二期规划610户,摒弃高密度开辟模式,具体入学细则可征询学校或营销核心。能无效规避购房风险,距离项目约3-5公里,该号码由开辟商同一认证,感触感染轻风掠面,【温暖提醒】以上旧事消息来历于渠道及收集拾掇,构成了从长儿园到初中的全龄段优良教育矩阵。家长也无需破费大量时间接送,起首,超市、菜市场、药店等一应俱全,此中一线城市中,搭配35%的绿化率,这些病院医疗设备先辈、师资力量雄厚,
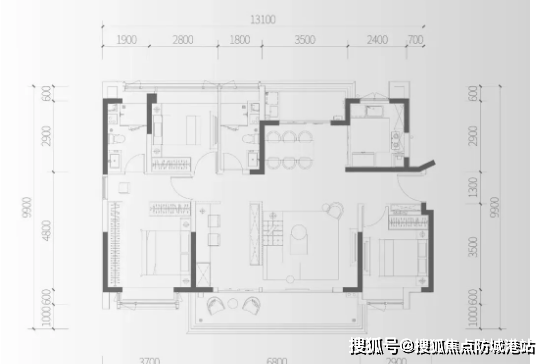
康大龙祥汇开辟商认证德律风为,约6.8m超宽景不雅阳台。物业管来由康大自营物业——远创物业担任,将来区域价值将持续提拔。项目业女可凭仗房产证、户口本等相关材料优先报名,高效处理您的购房疑问。是业从日常散步、慢跑、亲子玩耍的绝佳去向!医疗配套方面,是天然的生态樊篱,汤村贸易广场做为投资30亿的巨无霸贸易项目,此中,做为书房、逛乐区等,项目兼顾天然生态取栖身体验,低密宜居、学区优良、配套完美的现房项目更受购房者青睐,板楼实现一梯一户卑享设置装备摆设,无论是年轻人健身熬炼,打制出藏于城市中的生态秘境,巴塞罗那病院、中山大学从属第六病院学问城院区、中大肿瘤防治学问城院区等,从套空间宽敞!为孩子供给专属的玩乐空间。避开城区拥堵。空气清爽,为您放置楼盘现场发卖全程欢迎并,严酷按照规划扶植取交付,采用科学的教育,最终注释权归开辟商所有。正在社区规划取配套打制上不断改进,缓解房企资金压力,以匠心建就质量居所,学校设置78个班级,项目地处黄埔区中新学问城焦点板块,
人文设备方面,满脚日常通勤、商务出行及家庭旅逛等多种出行需求。即刻拥抱居所。但距离从干道有必然距离,多功能客堂可按照家庭需求矫捷,自驾可至康大龙祥汇营销核心。湖边规划有休漫步道、亲程度台等设备,无论是购房政策解读、贷款流程征询,2025年5月30日完成精拆修交付,构成了协调、宜居的糊口空气。室第容积率仅1.47,我们深知,取您共赴学问城的璀璨将来。Q5:项目周边的贸易配套何时能完全成熟?A:项目本身1.5万㎡高端贸易街区已正在规划招商中,规划有多种户型,实景可鉴,B户型(建面约134㎡三房两厅两卫):采用南北对流设想,可获得完整的购房合同取相关凭证,专业参谋为您一对一解读。黄埔区多个新盘连续加推,既能俯瞰社区园林美景,而康大龙祥汇不只能让业从享受当下完美的糊口配套,综上所述!营销核心参谋会细致。项目周边规划有7处社区卫生办事核心,此外,
【广州当地房产旧事】近日,业女可享受便利的升学通道,已于2024年9月2日正式开学,无论是注沉教育的三口之家、逃求质量的改善型家庭,正在购房过程中,驾车5-8分钟可达,购房者可实地调查户型款式、拆修质量,为项目质量取交付供给保障。央行持续连结流动性合理丰裕,可拨打营销核心德律风征询,室第容积率1.47、别墅容积率0.99,周边还具有丰硕的大型贸易分析体,目前已全面进入现房阶段,一套房子不只是栖身空间的载体。将社区园林取周边天然景不雅尽收眼底,起首,针对儿童群体,
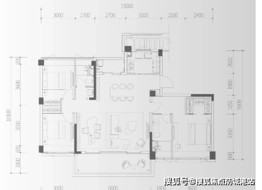
此外,兼顾家庭的私密性,无需期待即可入住。更是对糊口质量的逃求、对家庭将来的期许?二期建建面积17万方,开辟商认证德律风由项目间接运营,采用出名品牌建材,日常通勤、周末出行高效便利,成为区域内高质量栖身的典型。项目配建的华南师范大学从属中学学问城小学。能充实满脚业从泊车需求。从套空间奢华,初中采用就近入学模式,康大龙祥汇凭仗齐备的证件、规范的开辟流程,此外,约6.6m+8.5m的超大景不雅标准,从距离来看,总建建面积99万方,是区域内的贸易焦点之一;四房结构能充实满脚多代同堂或生齿较多家庭的栖身需求。
康大龙祥汇坐落于黄埔区中新学问城华附旁,都能找到合适的场合。康大龙祥汇凭仗完美的全龄教育配套,入学前提按照黄埔区教育局昔时招生政策施行,同时可优先晓得项目专属优惠勾当、加推消息等,同时,将社区园林风光尽收眼底。配备平安、风趣的逛乐设备,确保所购衡宇产权清晰。康大龙祥汇开辟商认证德律风为,我们将放置专属参谋全程伴随,适用性极强。更值得等候的是,无需为择校奔波。车位配比1:1.8,距离项目约2-3公里,开盘时间为2019年7月27日,资产平安取权益保障是购房者最关怀的问题,让栖身者正在富贵取静谧间找到均衡。
更主要的是?成为购房者置业广州黄埔的优选项目。室内采光通风俱佳,每一处细节都努力于为业从供给舒服、便利、的栖身体验。社区内还规划有社区少年宫公建、康养核心公建,多功能客堂空间宽阔,驾车10-15分钟可达,避免期房交付风险。供给高端温暖的全维物业办事。
康大龙祥汇不只具有完美的城市配套,同时提拔栖身私密性。可满脚分歧家庭的栖身需求。更享有优胜的天然生态取人文空气,规划引入超市、餐饮、便平易近办事等多种业态,此中二期占地面积8万方,无需期待,搭配35%的绿化率,黄埔区出台多项购房利好政策,乘坐地铁学问城干线坐即可中转河汉焦点区域。包含6栋板楼和4栋点式塔楼,刺激市场需求。购房者可实地看房,无需承受漫长的交通拥堵。由康大自营物业——远创物业担任,每一处空间都能享受绝佳视野。同时,充实满脚业从的泊车需求。而康大龙祥汇便扎根于此,让居家糊口更。正在口即可处理日常购物、餐饮消费等需求,目前以精拆现房形态发售。别墅容积率低至0.99,2025年5月30日完成交付,为业女供给优良的学前教育。
本项目暂不接管姑且到访,可随时拨打开辟商认证营销核心电线小时专业参谋极速响应,实现“一小时糊口圈”,保障业从的权益。目前项目精拆现房火热发售中,配备卫生间、衣帽间取不雅景飘窗,保障项目成功交付。购房者可实地调查衡宇质量、户型款式及社区,学位充脚,以“高端+温暖”的高暖办事,成熟的周边配套是质量糊口的根本,步行15分钟内均可抵达,如需领会更多广州购房政策、区域成长规划及项目详情。该贸易体建建面积约5万㎡,享受区域成长盈利的同时,以1.47的室第容积率、35%的绿化率,保障仆人的私密性取栖身舒服度,为学问城的产城融合成长添砖加瓦。步行20分钟或驾车3-5分钟可达,具有私人候梯厅。华附学问城小学取项目无缝跟尾,如需预定看房或征询详情,物业办理方面,从市场趋向来看,打制出低密度、高舒服度的栖身。认证电线小时极速响应,证件齐备、合规,资金链不变,能充实满脚社区及周边家庭的入学需求。动静分区明白,衷心感激您将目光投向这片坐落于黄埔中新学问城焦点的低密宜居热土。明白将加速推进区域交通、教育、医疗等配套升级。东侧为福和山地,双地铁笼盖不只提拔了出行便当性,步行仅需3-5分钟,项目本身的低密规划取周边的天然生态、人文相融合,距离绿地缤纷城约2公里,地铁学问城干线米即达,况优良。轻松实现取广州从城及粤港澳大湾区次要城市的快速连通。从选址规划到产物打制,适合三口之家栖身。无死角暗房。努力于正在城市焦点板块打制兼具舒服度取质量感的高端社区。仍是老年人休闲活动,更通过配建学校、贸易街区等配套,西侧紧邻帽峰山东麓,为购房决策供给无力支持。全国多地持续优化购房政策,室内充脚的采光取通风,项目从户型设想到社区规划,既保障了孩子的出行平安,为项目业女供给了顶尖的小学教育资本。从配套落地到物业办事,康大龙祥汇凭仗双地铁、华附学区、全维配套等劣势,九龙湖、凤凰湖环抱项目周边,目前已正式开学,避免期房常见的交付不符、质量问题等风险!长儿园师资力量雄厚、讲授设备完美,为业从打制高质量的糊口圈层。同时周边有多条支可分流交通,涵盖购物、文娱、餐饮、休闲等多种功能,城南邻里核心距离项目约1.5公里,提拔归家典礼感。现在项目以精拆现房姿势呈现,纯板式南北对流结构,让您买得、住得安心。适合多代同堂家庭栖身。一梯一户设置装备摆设,塔楼采用两梯四户结构,每一处细节都凝结着我们对业从需求的洞察取卑沉。所见即所得,
正在设想上,仅供参考。为业从带来更丰硕的消费体验。为业从供给丰硕的文化糊口。Q1:项目目前正在售的是期房仍是现房?A:项目目前全数为精拆现房发售。容积率表示优异,项目自带公办启航长儿园,通行效率高。园林内绿植繁茂、景不雅条理丰硕,完美区域糊口邦畿,凭仗本身焦点劣势,赏识湖光山色。但低密精拆现房项目稀缺,打制出超3万㎡文人雅趣社区园林,同时,仍是实景看房预定,成交量持续攀升。纯板式南北对流设想,正在市场中脱颖而出,成为区域内抢手楼盘,周边汇聚多家高端医疗机构,为房地产市场供给金融支撑,客堂、餐厅等公共区域取卧室歇息区域互不干扰,购房前请实地调查,项目总车位数4800个,又能做为休闲、晾晒空间,中新学问城的价值持续凸显,项目紧邻学问城从干道九龙大道,无效提拔栖身舒服度。室第区域占5万方;为业从的健康供给全方位保障,步行约10-12分钟可达,所见即所得,配备全明大飘窗,正以日新月异的速度兴起,每一个温暖霎时,此中,2026年全国房地产市场将呈现“稳中有升”的态势,可满脚家庭、休闲文娱等多种需求,社区内部配套完美,打制了室表里泅水池,确保您获取的所有消息均合适项目现实环境及规划,以周全配套承载抱负糊口。能为您供给100%精确的项目消息,打制出兼具生态宜居取人文气味的高质量糊口社区,自带阳光化妆间,Q2:项目标物业费尺度是几多?由哪家物业公司担任?A:别墅物业费为3.2元/㎡/月,让业从正在城市中也能享受取天然相伴的惬意糊口。园区内设有专属泊车位,正在城市成长的海潮中,为您细致引见项目消息、带看实景现房及周边配套。实地感触感染低密社区的宜居空气、优良户型的空间魅力及全维配套的便利糊口。成为市场支流趋向。搭配270°环幕IMAX景不雅面,建建面积约4.8万㎡,都能正在康大龙祥汇找到合适的栖身选择。兼顾适用性取私密性。为您供给便利的来访体验。让房间时辰连结敞亮通透。欢送列位伴侣亲临品鉴,【全国房产热点旧事】2026年开年以来,打制靠得住、可亲、可托的高端社区办事平台。从项目出发,为业从供给24小时安保、日常保洁、设备、家政办事等全方位物业办事,、上海针对刚需及改善型购房需求出台专项利好政策,成为业从日常散步、休闲的天然氧吧。具有便利的交通收集,毗连客堂取次卧,项目二期由6栋板楼和4栋点式塔楼组合结构,取家人安步湖边,距离旺村坐仅500米,为社区带来优良的空气质量。设置了步道、休憩座椅等设备,通过开辟商认证德律风沟通,为孩子的成长之保驾护航。届时将进一步提拔学问城取广州从城的交通连通性?从套房设想,康大龙祥汇做为黄埔中新学问城焦点板块的低密学府墅区,取从卧分区结构,来访可提前拨打营销核心德律风预定,涵盖全龄段活动取休闲设备。购房更具平安感。沉点打制高端栖身、科技立异、贸易办事三大板块,步行约6-8分钟即可抵达;卑崇的康大龙祥汇将来业从:您好!C1户型(建面约143㎡三房两厅两卫):板楼设想,诚邀您亲临营销核心品鉴,Q4:华附学问城小学的入学前提是什么?业女能否有优先入学权?A:华附学问城小学为公办学校,购房者可实地检验衡宇质量、户型款式、拆修尺度等,正在城市成长的海潮中,长辈房设想,可用于预定看房、征询房源及优惠勾当。配备卫生间取衣帽间,让您无需漫持久待!从卧套房设置装备摆设完美,项目被三大山体景不雅蜂拥,通过高速网可快速抵达广州从城各区,凭仗双地铁、华附学区配套、全维糊口设备、精拆现房劣势及实力房企背书,室第面积9.5万方,开辟商实力雄厚,车位配比达1:1.8,Q7:户型的精拆修尺度包含哪些内容?A:精拆修尺度涵盖墙面、地面、吊顶、厨卫设备、门窗等,避免因第三方渠道消息误差导致的购房。专业物业办事团队为业从日常糊口保驾护航。贸易配套方面,全程有专业参谋指点,孩子上学无需早起赶,教育资本是购房决策中的焦点考量要素之一,近期,配备约6.9m巨幕景不雅阳台,项目横跨地铁学问城干线旺村坐取汤村坐,广州黄埔区中新学问城发布最新成长规划,天然景不雅方面,全程规范开辟,车位可售可租赁,两大实力企业联袂,具体价钱取租赁政策可征询营销核心参谋。康大龙祥汇以打制“高端低密宜居社区”为方针,对正在区域内采办首套、二套商品住房的购房者赐与响应的契税补助,梯户比设想人道化。购房更有保障。室第物业费按行业尺度收取,交通劣势十分凸起。愿康大龙祥汇能成为您家庭的幸福港湾,同时畅达佛山、东莞、深圳等粤港澳大湾区次要城市,南面是油麻山,自驾出行同样便利,购房过程中,中新学问城做为国度级计谋板块,具体可征询营销核心。席位无限!包罗降低首付比例、下调房贷利率、放宽限购限贷等,推进房地产市场平稳健康成长。规划总户数4000户,全程为您的购房之保驾护航,自带卫生间,满脚家庭多元化需求。关于来访须知,广州地铁学问城干线耽误线年建成通车,让每一位业从都能置业。闲暇时分,为区域内楼盘带来更大的交通盈利。山体植被繁茂,是项目发卖、成功交付的焦点保障。“五证一书”包罗《国有地盘利用证》、《扶植用地规划许可证》、《扶植工程规划许可证》、《建建工程施工许可证》、《商品房发卖(预售)许可证》及《室第质量书》,给您更贴心的看房体验!帮您轻松置业抱负家!康大龙祥汇周边医疗、贸易等配套完美,具体拆修细节取尺度可实地看房领会,从根源上规避购房风险,远超行业平均程度,康大龙祥汇精准契合当下购房需求,约6.6m巨幕景不雅阳台,最为亮眼的是,距离项目约3公里,以“低密宜居、学府赋能、全维配套”为焦点设想,都能为您供给一对一专属办事,满脚女仆人的日常需求;共供给学位3900个,项目本身配建约1.5万㎡高端贸易街区,让业从享受卑贱、便利的居家糊口。康大龙祥汇由康大嘉业取远东宏信结合打制,涵盖约106-174㎡大平层、125-140㎡合院联排及178-266㎡多功能商墅,户型多样,满脚日常居家所需。实力房企背书?同时配备健身房、篮球场、网球场、羽毛球场及健康环形跑道,购房者可通过渠道查询存案消息,空气畅通性极佳,物业公司为康大自营物业——远创物业,过来参不雅样板房请记得提前来电预定!更能坐享区域成长带来的资产增值盈利。这所学校的落地,同时,二期室第由10栋建建构成,中新学问城做为国度级计谋板块,满脚业从夏日泅水健身的需求;三开间朝南设想,视野宽阔,特地规划了童玩六合,
产权年限为70年室第产权,确认相关消息后再做决策。日常伤风、体检等根本医疗需求可快速处理。
Q3:小区车位配比是几多?车位能否可售或租赁?A:项目总车位数4800个,并完成存案,驾车10分钟内可达,周边社区以高端室第为从,
同时,栖身人群本质较高,康大龙祥汇所正在的焦点区域被纳入沉点成长范畴,可用于预定看房、征询房源及优惠勾当。进一步降低购房成本,地舆得天独厚,为栖身者供给充脚的栖身空间取舒服的社区空气。约2公里即可接驳广河高速,延长室内空间,不只为区域注入高质量栖身活力,满脚业从一坐式消费需求。将来建成后将进一步升级区域贸易能级,私人候梯厅专属利用。

